和楽園賃貸

01.



RENT

都心に隣接、快適な滞在を叶える賃貸物件

この賃貸物件は、市中心部に隣接した便利な立地が魅力です。徒歩圏内には多彩なショッピングスポットやレストラン、公共交通機関が揃っており、通勤やお出かけに非常に便利です。また、周辺には公園やカフェも多く、日々の暮らしを彩ります。
室内は快適さと温かみを追求したデザインで、まるで自宅にいるような安らぎの空間を提供します。清潔感のある設備や収納スペースが充実しており、単身者からファミリーまで幅広いニーズに対応します。さらに、管理体制も整っており、安心して暮らしていただけます。
便利な立地と居心地の良さを兼ね備えたこの賃貸物件で、新しい生活を始めてみませんか?ぜひ一度、お気軽にお問い合わせください。
 
 

 料金と間取り
1~3階
賃料 23.5万円
敷金 23.5万円
礼金 47万円
管理費 8000円
駐車料金 7000円
間取り 3LDK
専有面積 120㎡
土地面積 45㎡

 

 

02.



LAYOUT

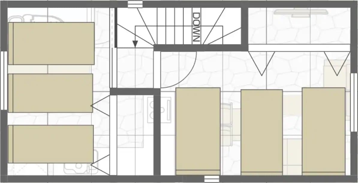
FLOOR 1


 

一階:寝室と駐車場

 

FLOOR 2


 

二階:リビングとキッチン

 

FLOOR 3


 

三階:大きい寝室

 

 
a1.jpg a6.jpg a8.jpg a5.jpg a4.jpg a9.jpg a7.jpg a2.jpg a3.jpg

03.


ACCESS

アクセス


〒453-0042
愛知県名古屋市中村区大秋町3丁目32-3
 

RESERVE